Thiết kế nội thất căn hộ
21/11/2020Thiết kế nội thất ngày càng được quan tâm bởi sự gia tăng nhanh chóng về số lượng chung cư trên địa bàn thành phố cũng như nhu cầu sở hữu không gian sống đạt tiêu chuẩn của người dân ngày càng cao. Tuy vậy, không phải hộ gia đình nào cũng có đủ nguồn lực tài chính để đầu tư thiết kế nội thất với những vật liệu cao cấp và xa xỉ. Nắm bắt được nhu cầu này của khách hàng, hôm nay Thiết Kế Long Hải sẽ mang đến cho bạn một vài gợi ý về một không gian sống chất lượng với giá thành phù hợp.



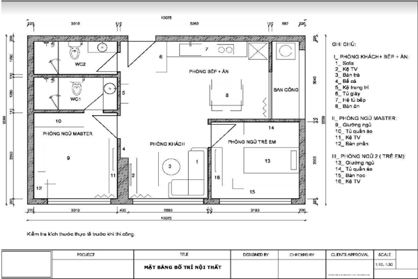
Trên đây là mặt bằng bố trí nội thất và phối cảnh tổng thể nội thất của một căn hộ chung cư bao gồm 1 phòng khách, 1 phòng bếp và 2 phòng ngủ.
Gam màu chính được sử dụng cho phòng khách là màu nâu đậm và trắng, tạo điểm nhấn bằng một vài chi tiết màu xanh dương như rèm cửa và gối ôm. Ngoài ra các chi tiết phụ kiện trang trí có thiết kế lạ mắt như bàn tiếp khách hay những bóng đèn thủy trinh treo trên trần sẽ làm cho căn phòng trở nên độc đáo hơn, đơn giản nhưng không hề đơn điệu hay nhàm chán.

Thay vì sử dụng chất liệu gỗ tự nhiên đắt tiền bạn nên lựa chọn các sản phẩm nội thất sản xuất từ gỗ công nghiệp với giá thành vừa phải, thiết kế và màu sắc lại vô cùng đa dạng.

Dù có mức giá thấp hơn gỗ tự nhiên nhưng các sản phẩm nội thất làm từ gỗ công nghiệp không hề thua kém về chất lượng.


Longhaiinternational.com
Tin liên quan
Biển Tòa Bắc Hà CT14, đường Tố Hữu, Hà Nội
28/11/2020
Thiết kế nội thất không gian lộ kết cấu
21/11/2020


